關於我們
服務項目
作品集
最新消息
最新消息
常見問題
裝修專欄
室內設計作品
風格靈感
裝修小知識
聯絡我們
室內設計作品
首 頁
室內設計作品
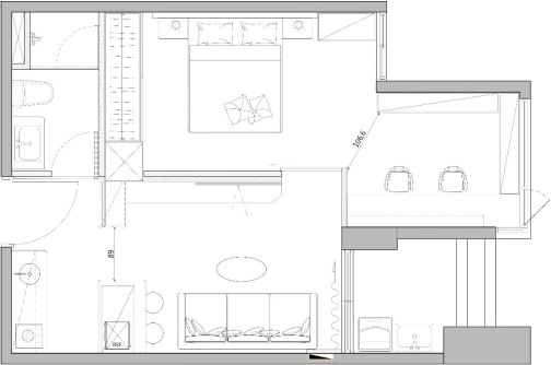
13坪|一房一廳一衛
2026-01-14
空間種類:
建物位置:新莊區榮華路
建物面積:13坪
室內格局:一房一廳一衛
設計師:
設計理念:
在有限坪數裡,打造不受限的生活質感。
以
低彩度灰調
鋪陳全室氛圍,搭配
俐落線條、鏡面層次與深色木皮
,讓光影成為最細膩的裝飾。線性燈軌、分割壁板、鏡面反射與金屬架構,共同構成一個
既俐落、又帶點冷靜優雅
的現代場景。
▲ 設計後平面圖
室內設計完工實景
為小坪數量身打造的現代居所
看更多作品集 >>
回上一頁